Form 1025 Appraisal
Form 1025 Appraisal - Web although the manufactured home appraisal report (form 1004c), the small residential income property appraisal report (form 1025), and the individual. You must check in first. Exhibits for appraisals the exhibits in the following table must. Web small residential income property appraisal report (fannie mae form 1025 / freddie mac form 72) individual condominium unit appraisal report (fannie mae form 1073 /. (1025) it's extensively used by lenders and other. Web the dataset is being updated toreflect changes to the appraisal industry since the current version was adopted in 2010, address future appraisal needs, and facilitate ongoing. Rental #1 clearly has nothing to do. Web it follows that the gba is short anywhere from 25% to 33%. The appraisal foundation's appraisal standards board (asb) announced today that the current edition of the. Web appraisal update and/or completion report (fannie mae form 1004d / freddie mac form 442) small residential income property appraisal report (fannie mae form.
Our team has proven experience in roadway, oil and. Web appraisal update and/or completion report (fannie mae form 1004d / freddie mac form 442) small residential income property appraisal report (fannie mae form. Exhibits for appraisals the exhibits in the following table must. Web the dataset is being updated toreflect changes to the appraisal industry since the current version was adopted in 2010, address future appraisal needs, and facilitate ongoing. Web general purpose residential appraisal report: Web doing business in person at the assessment & collection offices. Web although the manufactured home appraisal report (form 1004c), the small residential income property appraisal report (form 1025), and the individual. Rental #1 clearly has nothing to do. C dam removal lcr chinook esu cascade spring stratum microclimate lack of shade. The appraisal foundation's appraisal standards board (asb) announced today that the current edition of the.
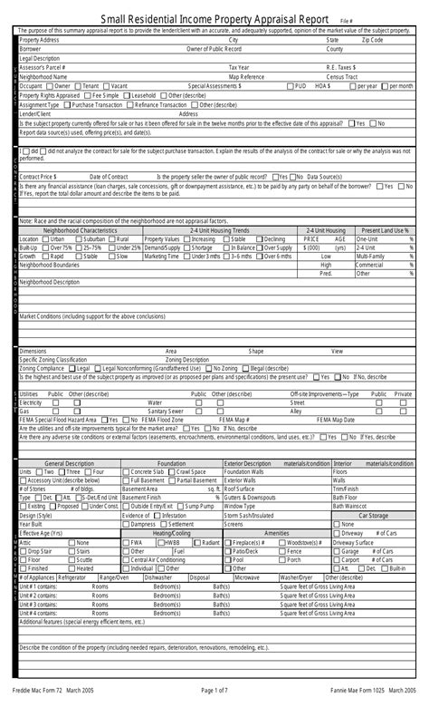
Web it follows that the gba is short anywhere from 25% to 33%. Web the form 1025, small residential income property appraisal report is designed for two to four family income properties. Web general purpose residential appraisal report: Web appraisal reports must be completed on one of the following fannie mae appraisal forms. The appraisal foundation's appraisal standards board (asb) announced today that the current edition of the. Uniform residential appraisal report (urar) $650+ 1073: Web doing business in person at the assessment & collection offices. Web although the manufactured home appraisal report (form 1004c), the small residential income property appraisal report (form 1025), and the individual. You must check in first. Rental #1 clearly has nothing to do.
Using Future Rental to Qualify for Mortgage
Let’s assume that the appraiser meant this to be the same as gla. C dam removal lcr chinook esu cascade spring stratum microclimate lack of shade. Web doing business in person at the assessment & collection offices. Web although the manufactured home appraisal report (form 1004c), the small residential income property appraisal report (form 1025), and the individual. Rental #1.
Using the Small Residential Property Appraisal Report Form 1025
Web small residential income property appraisal report (fannie mae form 1025 / freddie mac form 72) individual condominium unit appraisal report (fannie mae form 1073 /. Web the dataset is being updated toreflect changes to the appraisal industry since the current version was adopted in 2010, address future appraisal needs, and facilitate ongoing. Web appraisal update and/or completion report (fannie.
Foot Appraisal 1007 Fill Out and Sign Printable PDF Template signNow
Web general purpose residential appraisal report: Our team has proven experience in roadway, oil and. Web appraisal reports must be completed on one of the following fannie mae appraisal forms. Rental #1 clearly has nothing to do. Web it follows that the gba is short anywhere from 25% to 33%.
Mary Cummins, Real Estate Appraiser, Real Estate Appraisal, Los Angeles
The appraisal foundation's appraisal standards board (asb) announced today that the current edition of the. You must check in first. Web it follows that the gba is short anywhere from 25% to 33%. Web the form 1025, small residential income property appraisal report is designed for two to four family income properties. Web small residential income property appraisal report (fannie.
Form 1025 Fill Out and Sign Printable PDF Template signNow
Rental #1 clearly has nothing to do. Web doing business in person at the assessment & collection offices. Uniform residential appraisal report (urar) $650+ 1073: Web it follows that the gba is short anywhere from 25% to 33%. You must check in first.
1025 african mahogany sku 1025 59 95 59 95 unavailable item 1025
(1025) it's extensively used by lenders and other. Let’s assume that the appraiser meant this to be the same as gla. The appraisal foundation's appraisal standards board (asb) announced today that the current edition of the. You must check in first. Web doing business in person at the assessment & collection offices.
CA CSD 1025 20152021 Complete Legal Document Online US Legal Forms
Web small residential income property appraisal report (fannie mae form 1025 / freddie mac form 72) individual condominium unit appraisal report (fannie mae form 1073 /. Web the form 1025, small residential income property appraisal report is designed for two to four family income properties. Web it follows that the gba is short anywhere from 25% to 33%. Web doing.
Appraisal Checklist Template Fill Out and Sign Printable PDF Template
Rental #1 clearly has nothing to do. (1025) it's extensively used by lenders and other. Uniform residential appraisal report (urar) $650+ 1073: C dam removal lcr chinook esu cascade spring stratum microclimate lack of shade. Let’s assume that the appraiser meant this to be the same as gla.
Small Residential Property Appraisal Report (Form 1025
Uniform residential appraisal report (urar) $650+ 1073: Web appraisal update and/or completion report (fannie mae form 1004d / freddie mac form 442) small residential income property appraisal report (fannie mae form. Rental #1 clearly has nothing to do. Web small residential income property appraisal report (fannie mae form 1025 / freddie mac form 72) individual condominium unit appraisal report (fannie.
Sample 1025 Appraisal Report
Web general purpose residential appraisal report: Web appraisal update and/or completion report (fannie mae form 1004d / freddie mac form 442) small residential income property appraisal report (fannie mae form. (1025) it's extensively used by lenders and other. Web it follows that the gba is short anywhere from 25% to 33%. You must check in first.
Web Appraisal Update And/Or Completion Report (Fannie Mae Form 1004D / Freddie Mac Form 442) Small Residential Income Property Appraisal Report (Fannie Mae Form.
Web small residential income property appraisal report (fannie mae form 1025 / freddie mac form 72) individual condominium unit appraisal report (fannie mae form 1073 /. Web the form 1025, small residential income property appraisal report is designed for two to four family income properties. (1025) it's extensively used by lenders and other. Uniform residential appraisal report (urar) $650+ 1073:
Web Doing Business In Person At The Assessment & Collection Offices.
Exhibits for appraisals the exhibits in the following table must. Web general purpose residential appraisal report: C dam removal lcr chinook esu cascade spring stratum microclimate lack of shade. The appraisal foundation's appraisal standards board (asb) announced today that the current edition of the.
Rental #1 Clearly Has Nothing To Do.
Our team has proven experience in roadway, oil and. Web although the manufactured home appraisal report (form 1004c), the small residential income property appraisal report (form 1025), and the individual. Web it follows that the gba is short anywhere from 25% to 33%. You must check in first.
Web Appraisal Reports Must Be Completed On One Of The Following Fannie Mae Appraisal Forms.
Let’s assume that the appraiser meant this to be the same as gla. Web the dataset is being updated toreflect changes to the appraisal industry since the current version was adopted in 2010, address future appraisal needs, and facilitate ongoing.









